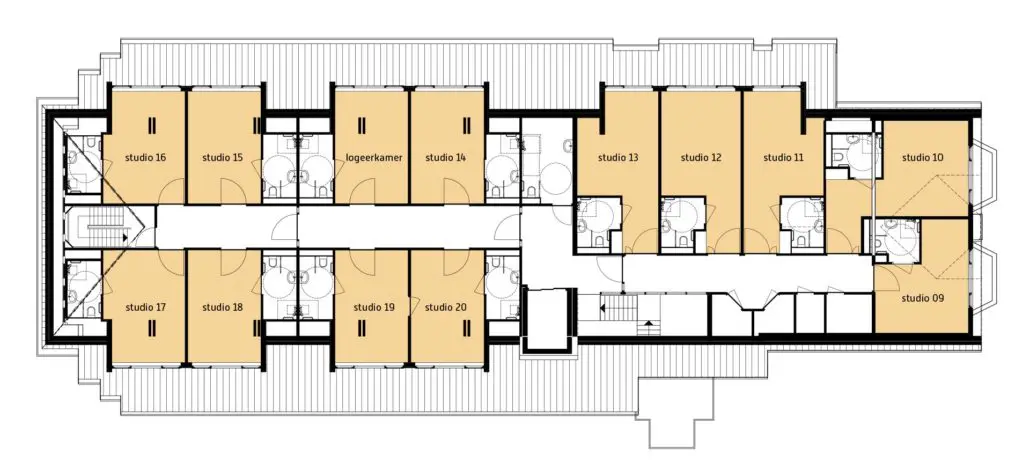
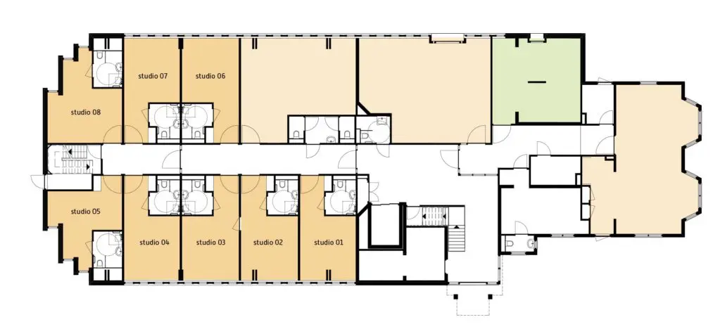
In Het Korenhuis bepalen de bewoners het ritme van de dag. Als particuliere zorgaanbieder staat bij ons eigen regie voorop. Vroeg uit de veren of juist lekker uitslapen? Dat mag de bewoner helemaal zelf weten. Net als wat hij of zij op de boterham smeert en of er hulp nodig is bij het douchen. We stimuleren bewoners zelf te blijven doen wat nog kan, maar staan 24/7 klaar om te helpen als dat nodig is. Even de ramen lappen, een was opvouwen of de kok helpen in de keuken? Heel graag! Maar blijft iemand liever in zijn eigen studio om rustig een puzzel te maken, dan mag dat natuurlijk ook. Zo bieden we ook een uitgebreid activiteitenprogramma, maar kiezen bewoners zelf waar ze aan meedoen.
Net als thuis zijn familieleden, vrienden en andere naasten altijd welkom in Het Korenhuis. Anders dan in een regulier verzorgingshuis kennen wij geen bezoektijden. Andersom zijn de bewoners ook vrij om zelfstandig op pad te gaan, zolang dat nog veilig kan. Dankzij onze open poort kunnen zij rustig zelf ergens op bezoek of een kleine boodschap halen. Verandert de zorgzwaarte? Bij complexe zorgvragen is er extra ondersteuning van de specialisten ouderengeneeskunde, verpleegkundig specialisten, physician assistants en psychologen van onze vakgroep Advies, Behandeling en Begeleiding.

